PSP - Przepompownie ściekowe przydomowe

PSP - Przepompownie ściekowe przydomowe

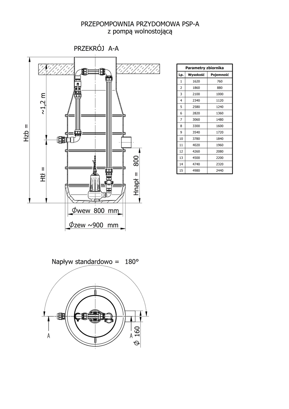
Przepompownia ściekowe przydomowe :

Średnica wew. zbiornika: Ø800 mm

Armatura i wyposażenie:

  • 321 - pion tłoczny/wylot DN32 + 1 pompa

  • 401 - pion tłoczny/wylot DN40 + 1 pompa

  • 501 - pion tłoczny/wylot DN50 + 1 pompa

Wersja wyposażenia:

  • A – Budżetowa: pompa wolnostojąca na dnie zbiornika

  • B – Standard: pompa na stopie sprzęgającej, dwie prowadnice

  • C – Premium: pompa na stopie sprzęgającej, dwie prowadnice, złącze do płukania, stopnie złazowe.

Wysokości zbiornika: od 1620 mm do 4980 mm

    Przykład: PSP-321A21, PSP-401B23, PSP-501C25

    Każda przepompownia wyposażona jest w zawór zwrotny kulowy oraz zawór odcinający.

    Filtr produktów

    Najwyższa cena to 16.520,00 zł

    3 Produktów